長崎市役所が建っている魚の町の隣、桶屋町に2021年に新築された「ネクサスコネクト桶屋町」。
1階には坂の街・長崎らしい自転車とバイクの両方を取り扱うお店があり、2~5階が貸事務所、6~10階が住宅の複合ビルです。
南西の窓からは市役所が見え、2階フロアは事務所利用のほか、飲食関係の入居も可能です。(※要相談)
立地
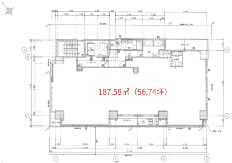
2階平面図

外観写真

貸事務所内や周辺の写真





バーチャル内覧:360°写真で2階貸事務所内をバーチャル内覧
画像をドラッグ/スワイプしたり、画面内の矢印をクリックすることで貸事務所内の様子をご覧いただけます。
バーチャル内覧:360°写真で建物周辺と共用スペースをバーチャル内覧
画像をドラッグ/スワイプしたり、画面内の矢印をクリックすることで共用エントランス内の様子をご覧いただけます。
